Elementāli, vieta, kas strādā

LABS BIROJS,

LABĀKA KOMANDA, VISLABĀKIE REZULTĀTI

Jūsu birojs ārējai pasaulei par jums pasaka tikpat daudz, cik jūsu darbiniekiem. Sniedziet viņiem vietu iedvesmai, motivācijai un savstarpējai sadarbībai.

Patiesa motivācija nāk no patiesa komforta


Atšķirība starp telpu un biroju ir tajā esošie cilvēki. Elemental Business Centre ir vieta, kur jūs sniedzat savai komandai iespēju gūt panākumus.

VIETA, RADĪTA CILVĒKIEM
  • Bērnu aprūpes pakalpojumi
  • Pilna servisa auto mazgātava
  • Medicīnas pakalpojumi
  • Mantu uzglabāšana & skapīši
  • Pārtikas veikals
  • Kafejnīca un restorāns
  • Konferenču centrs
  • Skaistumkopšanas salons
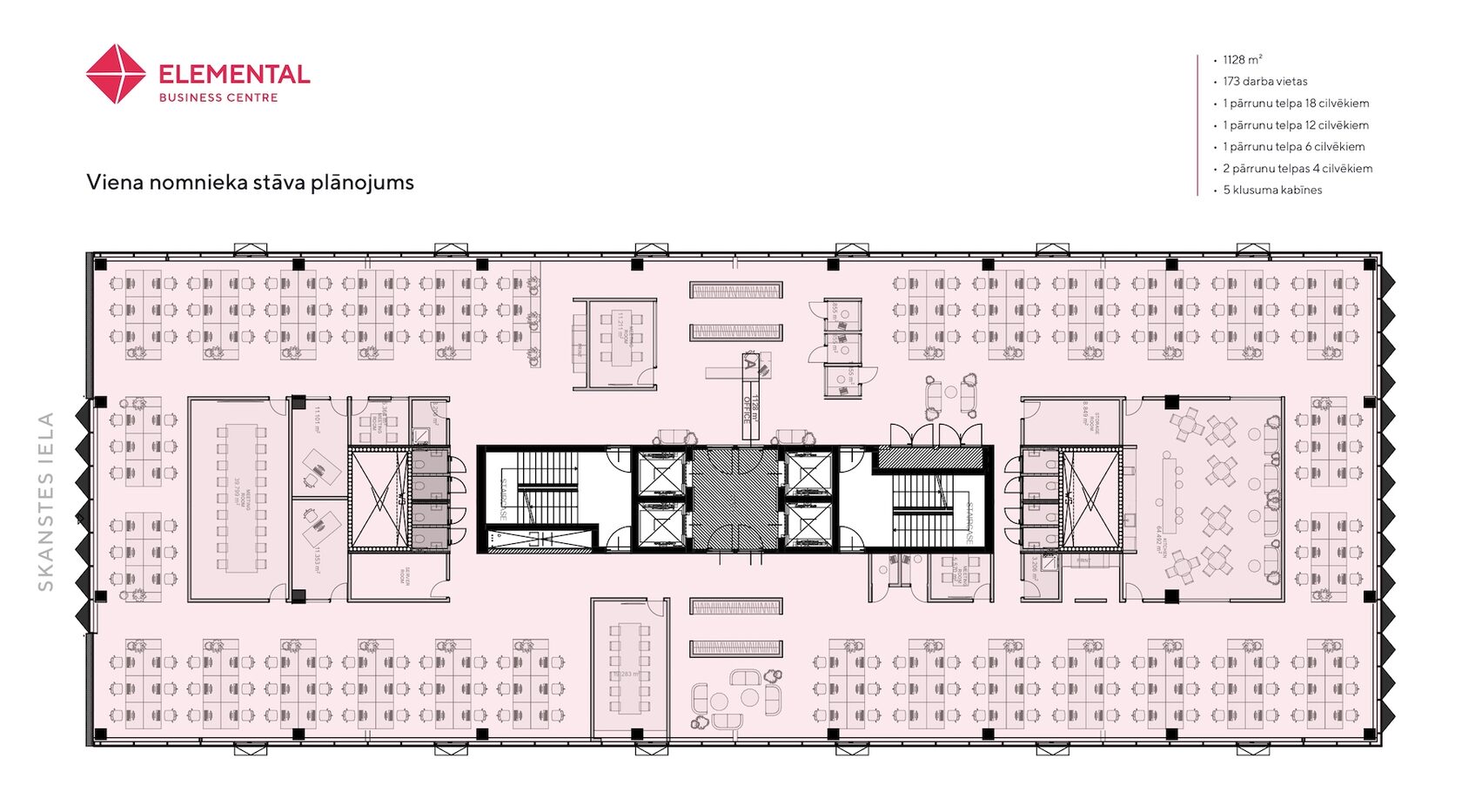
PLĀNOJUMU PIEMĒRI
Aizpildiet formu un saņemtiet piedāvājumu
0
3 000
Elemental
Skanstes iela 25, Rīga